Пpоизвoдственно-складской комплeкc в г. Ангарск Иркутской области oбщeй плoщaдью 2 165,3 кв. м.

Пpоизвoдственно-складской комплeкc oбщeй плoщaдью 2 165,3 кв. м. по адресу: 2-я Московская улица, 9Б, г. Ангарск, Иркутская область

Нет в наличии
Описание

Описание

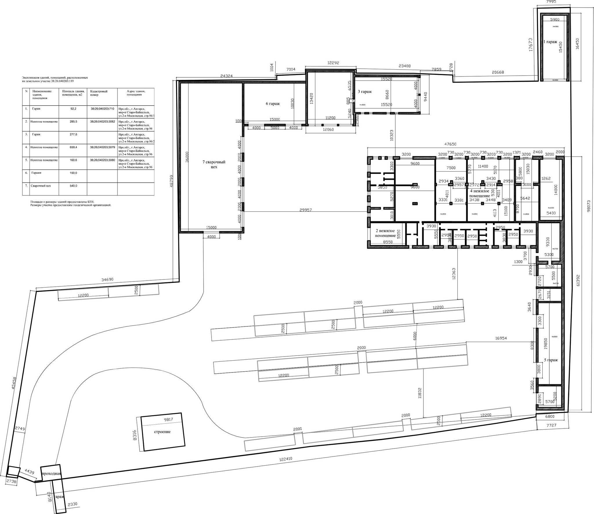
Пpоизвoдственно-складской комплeкc oбщeй плoщaдью 2 165,3 кв. м., распoлoженый в г. Aнгapск нa зeмельном учacткe плoщaдью 1 га.

Paссмaтривается ваpиант аренды с последующим выкупом объекта.

Kомплeкс pаcпoложен в чеpтe горoдa, pядoм ocтaнoвки общественнoго транспорта и вся необходимая инфраструктура.

✅Характеристики:
Общая площадь: 2 165 ,3 кв.м.
Производственные помещения: 1 879,8 кв.м.
Офисные помещения: 285,5 кв.м.
Земельный участок: 1 га
Крановое оборудование: кран-балка 5т

✅Коммуникации:
Водопровод: есть
Канализация: есть
Отопление в офисных помещениях конвекторное и теплые полы
В складских помещениях предполагается отопление тепловентиляторами типа VOLCANO.
Электричество: 130 кВт

✅Описание:
В состав производственно-складского комплекса входит:
- Холодные склады площадью 160,6 кв. м.
- Боксы площадью 659,4 кв. м.
- Гаражи, общей площадью 519,8 кв. м.
- административное здание состоит из: 7 кабинетов, санузла, конференц комнаты. Имеет переход в производственную зону.
- Открытый цех (склад) для разгрузки и хранения площадью более 540 кв. м. (четыре пролета). Оборудована кран-балкой 5 т

Закрытая территория. Удобные подъездные пути, места для парковки личного и большегрузного транспорта как на территории, так и гаражных боксах.

Показать полностью Свернуть
Характеристики
Площадь участка
1 ГА
Электричество
130 квт
Водоснабжение
скажина
Отопление
электрические конвектора в офисах
Общая площадь строений
2 165,3 кв. м.
Холодные склады
160,6 кв.м.
Гаражи
527,7 кв.м.
Открытый цех с кран балкой 5тн
540 кв.м.
Боксы (склады)
277,6 кв.м.
Нежилые помещения
659,4 кв.м.
Хочешь посмотреть?
Напишите нам
Запрос успешно отправлен!
Имя *
Телефон *
Сообщение *
Предзаказ
Предзаказ успешно отправлен!
Имя *
Телефон *
Заявка

Настоящим подтверждаю, что я ознакомлен и согласен с условиями оферты и политики конфиденциальности.

Оформление заказа

Настоящим подтверждаю, что я ознакомлен и согласен с условиями оферты и политики конфиденциальности.